We as a company can reduce risk and improve compliance.
Our accreditations offer customers peace of mind. Our continued business is built on reputation and reliability, whilst meeting and exceeding our client’s expectations.
With our employees having knowledge of regulations, great technical ability and experience of working in a wide range of industries, we can minimise your costs and fulfil your requirements.
Our success has enabled us to expand with progress every year.
Services
Mechanical Systems
Projects include a range of Mechanical Services works including Refrigeration, Air Conditioning & Ventilation, Sheet metal works, Stainless Steel works, Plumbing, and Automation & Controls.
Building Automation & Communication Systems
provide automatic control of the conditions of indoor environments. The historical root and still core domain of BAS is the automation of heating, ventilation and air-conditioning systems in large functional buildings.
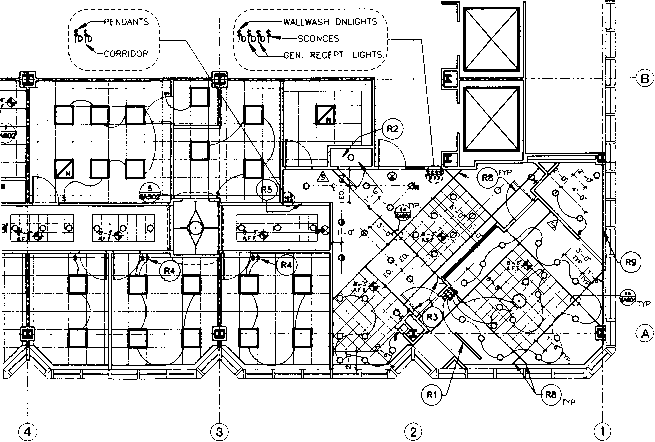
- Lighting.
- Chillers and cold storage.
- HVAC (Heating, ventilation, and air conditioning)
- Electrical systems.
- Occupancy sensors.
- Fire Alarms and Fire Suppression.
- Security system and Alarms.
- CCTV.
Inspection & Testing
An electrical safety test provides insight into whether or not one’s product is safely designed, such that one can avoid or reduce the risk of the product being the cause of damage or injury to people, pets and property.
Fixed Wiring Inspection
Test Reports
Thermal Imaging
Meet Some Of Our Most Prestige Clients.


Electrical Systems
Electrical services refer to the installation, maintenance, and repair of electrical equipment in a building. This can include anything from light fixtures to wiring systems, outlets, and circuit breakers. They also include the installation of electrical systems such as generators, UPS units, and solar panels.
Design & Manufacture
which helps pupils develop technical knowledge and creative skills by designing and making solutions to real problems. Pupils will gain an insight into the creative industries and into how everyday products are manufactured.
Turnkey Projects
Control & Monitoring Panels
load bank generator test puts a generator under varying load conditions and sees how the machine reacts to the power draw. While you can use other means of testing generators, load banks offer the most accurate means of testing the power equipment.

OUR PRODUCTS
PSG ELECTRICAL PTE LTD has partnered and have been using ISO accredited suppliers to supply all goods and services to the company

PSG ELECTRICAL PTE LTD provides “Innovative and Excellent Electrical Service”, while the clients take control of their strategic planning by focusing into the core competencies of their business. Alongside bringing new technology to the industry PSG ELECTRICAL
PTE LTD clients takes advantage of better managing the facilities
budget in an energy efficient manner.



